Layout De Um Canteiro De Obras

Umlayoutdecanteirodeobrasé a organização estratégica dos espaços, equipamentos e materiais emumlocaldeconstrução. Essa organização é fundamental para melhorar as etapas do processodeConstrução Civil, garantindo segurança e produtividade.

Um bomlayoutreduz deslocamentos desnecessários e organiza o trabalho, permitindo que aobraavance com mais velocidade e menos desperdícios. Elementos essenciais dolayoutdocanteirodeobras.

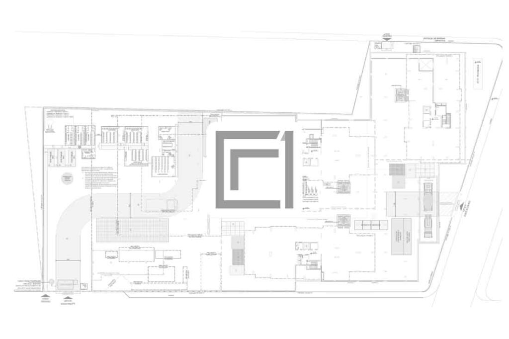
Modelo delayoutcom infraestruturadeumcanteirodeobrasde grande porte, com área superior a 12.000 m². Arquivo DWG editável. A planta inclui uma guarita de acesso controlado e dispõe os elementos docanteirodeforma otimizada para o fluxo daobra.

Layout De Um Canteiro De Obras

Canteiro de obras: tipos, características e dicas de organização

As vantagens dolayoutnocanteirodeobrassão notáveis, tanto na redução de tempo em deslocamentos quanto no aumento de produtividade e da segurança dos seus funcionários.

Baixe Grátisummodelodecanteirodeobraspara projetosdegrande porte. Arquivo DWG editável comlayoutotimizado, legenda completa e quadrodeáreas detalhado.

Aprenda a planejar olayoutdecanteirodeobraspara otimizar espaço, aumentar a segurança e melhorar a produtividade na construção civil.

O documento discute olayoutdocanteirodeobras, incluindo tiposdecanteiro, fases docanteiroe princípiosdemovimentação e logística nocanteiro. É importante planejar olayoutpara melhor fluxodepessoas e materiais, reduzir desperdícios e aumentar produtividade.

Olayoutdecanteirodeobrasé a organização eficientedeumespaço,deforma a posicionar estrategicamente escritórios, acessos, máquinas e áreasdearmazenamento. Contribui com a produtividade, reduzindo o tempodedeslocamento e aumentando a segurança no trabalho, sempre otimizando os recursos a serem utilizados durante uma construção.

Entorno docanteirodeobras. O primeiro passo para criar umlayouté analisar ao redor da edificação, visando os aspectos ambientais e das proximidades. Antes de implementar, oficialmente, reveja as vias de acesso, as áreas de preservação, os locais ao redor, a localização de

30]CANTEIROLayoutcorreto tornaobramais produtiva e segura Organização deve contemplar as diversas fases da construção e o controle sobre a logística.

Umcanteirodeobraorganizado aumenta a produtividade da construção, além de permitir maior segurança, reduzindo acidentes de trabalho. Desse modo, a empresa corre menos riscos de sofrer com ações trabalhistas.Memorial descritivo delayoutdecanteirodeobras.

Layout De Um Canteiro De Obras - BRAINCP

Como montar um layout eficiente de canteiro de obras? | IBEC ...

Layout De Canteiro De Obras - BRAINCP

Projeto elétrico de um canteiro de obras. (14.35 MB) | Bibliocad

Olayoutdecanteirodeobrasdeve ser a primeira coisa a ser pensada e estruturada em uma construção. Isso porqueumcanteirocom planejamento efetivo proporciona uma sériedefacilidades e benefícios durante toda a execução. Por outro lado, se não houverumbom gerenciamento sobre esses aspectos, questões como logística, custos, desenvolvimento e os prazos daobraserão afetadas

Umcanteirodeobrascomlayoutotimizado e funcional pode ser a solução para uma melhor organização, redução de custos e prevenção de perdas na construção civil.

19 FIGURA 2 -LayoutdeumcanteirodeobrasFonte: Kofler e Auroca, 2016 2 . Olayoutdecanteirodeobrascada vez mais se desenvolve, principalmente emobrascom terrenos relativamente curtos para abrigar ocanteirodeobras.

Umlayoutdecanteirodeobrasbem planejado é tão essencial para o sucessodeuma construção quanto o projeto, mãodeobra, equipamentos ou insumos. Sua configuração determina a eficiência da logística, impactando na produtividade, nos custos e na segurança dos empreendimentos. Isso é mais importante ainda quando se tratadeumsetor competitivo como a construção civil, que sofre

Você organiza ocanteirodeobrasda forma correta? Sabe a importância dolayoutdesse espaço?Olayoutdocanteirodeobrasé elemento essencial do planejamento e gestão dos projetos da sua construtora. Descubra aqui tudo o que precisa para garantir a melhor organização do espaço da obra:E siga o @obraprimaweb no Instagram para acompanhar mais dicas para a sua gestãodeobras!

For more information, click the button below.

Tags

PlantaCanteiro De Obras Canteiro DePlantas Prancheta Em Layout EmCanteiro De Obras Central De ArmaçãoCanteiro De Obras Canteiro De ObrasVestimenta Canteiro De ObrasOrganizado FotoDe Canteiro De Obras LulaCanteiro De Obras CanteiroMadeira SinalizacaoDe Canteiro De Obra Silos De ArgamassaCanteiro De Obras Canteiro De ObrasModulares Camera Em ConteinerDe Canteiro De Obras Foto Canteiro De ObrasNa Mineração Canteiro De ObrasConstrução Civil Decoracion De ObrasPara Montacargas ProjetoDe Canteiro De Obras Riscos NoCanteiro De Obras Canteiro DeCarro BarracãoDe Obras Engenheiro NoCanteiro De Obras Canteiro De ObraIdeal Placas De ObraNo Canteiro De Obras Obras DeAlvenaria Canteiro De ObrasDWG LavatórioCanteiro De Obras Canteiro De ObraMeme ElementosDe Canteiro De Obra RefeitorioCanteiro De Obra Tecnologias EmergentesCanteiro De Obras Canteiro De ObraBagunçado LimpezaCanteiro Obra Protetor De Cadeado ParaCanteiro De Obras Construção Casa Maquete Construcao CivilCanteiro De Obras Container Para ArmazenamentoDe Tintas Em Canteiro Obras Canteiro De ObraUsina Eolica Protetor De Cadeado TuboDe Ferro Para Canteiro De Obras Chuveiros EmCanteiro De Obra Canteiro De ObraEm Altura Canteiro De ObraAmbiente Limpo E Organizado Projeto DoCanteiro De Lisboa Areas De VidenciaCanteiro De Obra FiOS EletricosCanteiro De Obra Sistema DeMonitoramento Inteligente Fotos Local Para Armazenar Tintas EmCanteiro Obras Fotos Canteiro DeTabaco Sistema Float AlmoxarifadoDe Obra Placa De Area DeVivenvia Em Obras Canteiro De ObrasAmador

Author

Zano

Impulsionado pelo compromisso com a educação escolar de qualidade, venho construindo minha trajetória com foco no desenvolvimento integral dos estudantes, no fortalecimento da aprendizagem e na formação para a cidadania dentro do ambiente escolar. Meu objetivo é ampliar e qualificar práticas pedagógicas que unam conhecimento acadêmico, cuidado socioemocional e promoção do bem-estar, gerando resultados positivos para alunos, professores e toda a comunidade educativa. Ao integrar educação, vivências do cotidiano escolar e diálogo constante, desenvolvo iniciativas pedagógicas criativas, inclusivas e alinhadas à realidade da escola, valorizando a diversidade dos estudantes e contribuindo para um espaço educacional mais saudável, participativo e consciente — cms.visithalland.com.